Форум.УСИНСК.ин - Усинский городской форум. Общение с 2000 года.

Здравствуйте, гость ( Вход | Регистрация )

3 страниц V   1 2 3 >  
Reply to this topicStart new topic
> Перепланировка квартиры, Все вопросы: бумажные и материальные
Ксюша Бородина
сообщение 5.5.2009, 7:46
Сообщение #1

Писатель
******
Сообщений: 613
Группа: Пользователи
Карма: 0/0
Регистрация: 28.5.2008

Ситуация такая - сделали незаконно перепланировку, снесли 50 см. несущей стены. Сейчас квартиру надо продать, но без узаконенной перепланировки это сделать невозможно. Подскажите, что делать. Заплачу любые деньги


--------------------
Лёд пустых глазниц,
Оторопь сердец,
Кривотолков чад
Гонят дурака по сонной земле,
Где не стынет закат,
Где не плещут зори.
Сколько лет в пути,
А сколько впереди?
Как найти да помочь дураку одолеть
Горе?
(с) К. Кинчев
Go to the top of the pageВставить ник в ответ
+Quote Post
Partizan
сообщение 5.5.2009, 7:54
Сообщение #2

Старожил
*******
Сообщений: 1966
Группа: Пользователи
Карма: 0/0
Регистрация: 20.4.2002

обратись к специалистам по решению проблем незаконной перепланировки - юристы. адреса юр. агенств найдёш в любой газете.
с тебя 500 баксов.


--------------------
"...люди столько в тюрьме не сидят, сколько мы - в Интернете..."
Go to the top of the pageВставить ник в ответ
+Quote Post
AMYudin
сообщение 5.5.2009, 8:04
Сообщение #3

Смотритель
********
Сообщений: 3856
Группа: Пользователи
Карма: 0/0
Регистрация: 17.4.2004

или зашить эти 50 см гипсокартоном, а после оформления бумаг, новые хозяева его обратно демонтируют.
Go to the top of the pageВставить ник в ответ
+Quote Post
AV
сообщение 5.5.2009, 8:06
Сообщение #4

Мастер
***********
Сообщений: 16776
Группа: Без группы
Карма: 12/0
Регистрация: 29.5.2001

http://www.usinsk.in/5271-pereplanirovka-s...-po-zakonu.html
http://www.usinsk.in/2006/04/03/_v_kvartire.html
http://www.usinsk.in/2006/10/28/chto_nam_s...estroit___.html


--------------------
"Я люблю этот город, но зима здесь слишком длинна" (С)
Go to the top of the pageВставить ник в ответ
+Quote Post
QQ-3
сообщение 5.5.2009, 9:53
Сообщение #5

Смотритель
********
Сообщений: 4982
Группа: Пользователи
Карма: 0/0
Регистрация: 17.6.2001

а зачем снесли несущую стену??? shok.gif shok.gif
Go to the top of the pageВставить ник в ответ
+Quote Post
Ксюша Бородина
сообщение 5.5.2009, 9:57
Сообщение #6

Писатель
******
Сообщений: 613
Группа: Пользователи
Карма: 0/0
Регистрация: 28.5.2008

Цитата(QQ-3 @ May 5 2009, 10:53) *
а зачем снесли несущую стену??? shok.gif shok.gif

да так получилось. не расчитали слегка


--------------------
Лёд пустых глазниц,
Оторопь сердец,
Кривотолков чад
Гонят дурака по сонной земле,
Где не стынет закат,
Где не плещут зори.
Сколько лет в пути,
А сколько впереди?
Как найти да помочь дураку одолеть
Горе?
(с) К. Кинчев
Go to the top of the pageВставить ник в ответ
+Quote Post
QQ-3
сообщение 5.5.2009, 10:41
Сообщение #7

Смотритель
********
Сообщений: 4982
Группа: Пользователи
Карма: 0/0
Регистрация: 17.6.2001

Цитата(Ксюша Бородина @ May 5 2009, 10:57) *
да так получилось. не расчитали слегка

я бы на вас ругался громко!
если честно smile.gif
Go to the top of the pageВставить ник в ответ
+Quote Post
Ксюша Бородина
сообщение 5.5.2009, 10:46
Сообщение #8

Писатель
******
Сообщений: 613
Группа: Пользователи
Карма: 0/0
Регистрация: 28.5.2008

мы сейчас сами на себя ругаемся громко и на строителей


--------------------
Лёд пустых глазниц,
Оторопь сердец,
Кривотолков чад
Гонят дурака по сонной земле,
Где не стынет закат,
Где не плещут зори.
Сколько лет в пути,
А сколько впереди?
Как найти да помочь дураку одолеть
Горе?
(с) К. Кинчев
Go to the top of the pageВставить ник в ответ
+Quote Post
Маркиза
сообщение 5.5.2009, 20:12
Сообщение #9

Старожил
*******
Сообщений: 1424
Группа: Пользователи
Карма: 0/0
Регистрация: 28.2.2008

тут либо признаваться и штраф платить, либо вариант с гипсокартоном...


--------------------
Размышляя о Смысле Жизни - не опускайся до разговоров со всяким ...
Go to the top of the pageВставить ник в ответ
+Quote Post
HzKto
сообщение 5.5.2009, 23:22
Сообщение #10

Старожил
*******
Сообщений: 1383
Группа: Пользователи
Карма: 0/0
Регистрация: 2.9.2006

пипец, тут дома и так рушаться, а вы ещё Несущие стены сносите....5баллов victory.gif
Go to the top of the pageВставить ник в ответ
+Quote Post
Ксюша Бородина
сообщение 6.5.2009, 7:46
Сообщение #11

Писатель
******
Сообщений: 613
Группа: Пользователи
Карма: 0/0
Регистрация: 28.5.2008

Цитата(Маркиза @ May 5 2009, 21:12) *
тут либо признаваться и штраф платить, либо вариант с гипсокартоном...

а штраф нынче сколько?


--------------------
Лёд пустых глазниц,
Оторопь сердец,
Кривотолков чад
Гонят дурака по сонной земле,
Где не стынет закат,
Где не плещут зори.
Сколько лет в пути,
А сколько впереди?
Как найти да помочь дураку одолеть
Горе?
(с) К. Кинчев
Go to the top of the pageВставить ник в ответ
+Quote Post
Маркиза
сообщение 6.5.2009, 21:19
Сообщение #12

Старожил
*******
Сообщений: 1424
Группа: Пользователи
Карма: 0/0
Регистрация: 28.2.2008

Ксюша Бородина, этого я те сказать не могу, тут всё зависит от того, что тебе скажет товаришь главный архитектор города: может тебя заставят всё как было сделать, или, если сие не возможно, усилить стенку... там уж как повезет...


--------------------
Размышляя о Смысле Жизни - не опускайся до разговоров со всяким ...
Go to the top of the pageВставить ник в ответ
+Quote Post
MORA
сообщение 8.5.2009, 19:28
Сообщение #13

Достопримечательность
*******
Сообщений: 1976
Группа: Пользователи
Карма: 0/0
Регистрация: 6.2.2009

Цитата(Ксюша Бородина @ May 5 2009, 08:46) *
Заплачу любые деньги


Сколько платишь за инструктаж? Словимся если что, полная инфа...


--------------------
神風
Go to the top of the pageВставить ник в ответ
+Quote Post
maks
сообщение 8.5.2009, 22:08
Сообщение #14

Старожил
*******
Сообщений: 1929
Группа: Пользователи
Карма: 0/0
Регистрация: 5.12.2005

Цитата(HzKto @ May 6 2009, 00:22) *
пипец, тут дома и так рушаться, а вы ещё Несущие стены сносите....5баллов victory.gif


Небоись, зная какие люди учатся на строителей в Вузах )))) снос несущих стен это еще цветочки )))

Цитата(Ксюша Бородина @ May 5 2009, 08:46) *
Ситуация такая - сделали незаконно перепланировку, снесли 50 см. несущей стены. Сейчас квартиру надо продать, но без узаконенной перепланировки это сделать невозможно. Подскажите, что делать. Заплачу любые деньги


2 миллиона и я решу твою проблему. Договорились?

Цитата(Маркиза @ May 6 2009, 22:19) *
Ксюша Бородина, этого я те сказать не могу, тут всё зависит от того, что тебе скажет товаришь главный архитектор города: может тебя заставят всё как было сделать, или, если сие не возможно, усилить стенку... там уж как повезет...

Ага, а Мишка суровый с бодуна )))))
Go to the top of the pageВставить ник в ответ
+Quote Post
Ньютоник
сообщение 5.4.2011, 18:52
Сообщение #15

Старожил
*******
Сообщений: 1667
Группа: Пользователи
Карма: 0/0
Регистрация: 30.9.2010

Здравствуйте! Хотим сделать небольшую перепланировку квартиры.
Кто это делал?
Опишите пожалуйста план действий в порядке возрастания. Что нужно, справки, инстанции и сколько стоит данная процедура? Спасибо smile.gif

Сообщение отредактировал Ньютоникъ - 5.4.2011, 19:11


--------------------
Администратор имеет все возможные права, два невозможных и одно невероятное.
http://idroid-usinsk.ru/
Go to the top of the pageВставить ник в ответ
+Quote Post
Logotip
сообщение 6.4.2011, 7:09
Сообщение #16

Z
***********
Сообщений: 18208
Группа: Пользователи
Карма: 10/0
Регистрация: 16.4.2002

Такая тема уже была поищи.


--------------------
Настоящему индейцу завсегда везде ништяк!
Go to the top of the pageВставить ник в ответ
+Quote Post
Lex_work
сообщение 6.4.2011, 9:06
Сообщение #17

Старожил
*******
Сообщений: 1017
Группа: Пользователи
Карма: 0/0
Регистрация: 21.10.2005

К любому городскому риэлтору. Услуга платная, зато всё сами делают, без заморочи и очередей всяких.


--------------------
Цитата(father @ 25.12.2012, 0:04)
замечание написал выше. на остальное пох. не читал. много букв.
Go to the top of the pageВставить ник в ответ
+Quote Post
Crack
сообщение 6.4.2011, 9:40
Сообщение #18

Старожил
*******
Сообщений: 1343
Группа: Пользователи
Карма: 0/0
Регистрация: 21.6.2006

Цитата(Ньютоникъ @ 5.4.2011, 19:52) *
Здравствуйте! Хотим сделать небольшую перепланировку квартиры.
Кто это делал?
Опишите пожалуйста план действий в порядке возрастания. Что нужно, справки, инстанции и сколько стоит данная процедура? Спасибо smile.gif

делал через риелтора, 3 раза в определенное место и время по предварительному звонку явился, подписал, после получения паспорта на квартиру отдал 15 тыр. и все. Снос и вывоз мусора отдельно около 7 тыр. получилось, зависит от квадратных метров сноса smile.gif


--------------------
PokerStars: Garage174
Go to the top of the pageВставить ник в ответ
+Quote Post
Ньютоник
сообщение 6.4.2011, 14:45
Сообщение #19

Старожил
*******
Сообщений: 1667
Группа: Пользователи
Карма: 0/0
Регистрация: 30.9.2010

Цитата(Crack @ 6.4.2011, 10:40) *
делал через риелтора, 3 раза в определенное место и время по предварительному звонку явился, подписал, после получения паспорта на квартиру отдал 15 тыр. и все. Снос и вывоз мусора отдельно около 7 тыр. получилось, зависит от квадратных метров сноса smile.gif

Понятно. Спасибо smile.gif


--------------------
Администратор имеет все возможные права, два невозможных и одно невероятное.
http://idroid-usinsk.ru/
Go to the top of the pageВставить ник в ответ
+Quote Post
Crack
сообщение 6.4.2011, 14:55
Сообщение #20

Старожил
*******
Сообщений: 1343
Группа: Пользователи
Карма: 0/0
Регистрация: 21.6.2006

по времени от момента обращения до получения пачпорта прошло 2,5 месяца
за это время уже почти все было сделано, всмысле снесено и завуалировано как буд то так и было smile.gif


--------------------
PokerStars: Garage174
Go to the top of the pageВставить ник в ответ
+Quote Post
Ньютоник
сообщение 6.4.2011, 17:08
Сообщение #21

Старожил
*******
Сообщений: 1667
Группа: Пользователи
Карма: 0/0
Регистрация: 30.9.2010

Цитата(Crack @ 6.4.2011, 15:55) *
по времени от момента обращения до получения пачпорта прошло 2,5 месяца
за это время уже почти все было сделано, всмысле снесено и завуалировано как буд то так и было smile.gif

А комиссия приходила на осмотр... Ну там несущая стена или нет?


--------------------
Администратор имеет все возможные права, два невозможных и одно невероятное.
http://idroid-usinsk.ru/
Go to the top of the pageВставить ник в ответ
+Quote Post
aCrack
сообщение 6.4.2011, 21:29
Сообщение #22

Завсегдатай
*****
Сообщений: 400
Группа: Пользователи
Карма: 0/0
Регистрация: 27.8.2010

Цитата(Ньютоникъ @ 6.4.2011, 18:08) *
А комиссия приходила на осмотр... Ну там несущая стена или нет?

комиссии не было, приходили тока с УК и смотрели как получилось, в разрешении на снос было указано "без применения ударного инструмента" - Ломали дрелью (сверлили дырок) и ЗДОРОВЕННОЙ кувалдой на 40 кг. пол дня и стена на улице в мешках.
а несущая или нет - эта информация есть в администрации, да и сам посмотри если у стены нет "завершения" значит можно сносить.


--------------------
PokerStars: Garage174
Go to the top of the pageВставить ник в ответ
+Quote Post
Ньютоник
сообщение 7.4.2011, 15:16
Сообщение #23

Старожил
*******
Сообщений: 1667
Группа: Пользователи
Карма: 0/0
Регистрация: 30.9.2010

Цитата(aCrack @ 6.4.2011, 22:29) *
комиссии не было, приходили тока с УК и смотрели как получилось, в разрешении на снос было указано "без применения ударного инструмента" - Ломали дрелью (сверлили дырок) и ЗДОРОВЕННОЙ кувалдой на 40 кг. пол дня и стена на улице в мешках.
а несущая или нет - эта информация есть в администрации, да и сам посмотри если у стены нет "завершения" значит можно сносить.

У Нас деревянная перегородка между коридором и комнатой хотим её снести, сделать длинный коридор и сделать в каждую комнату по входу, а то зал проходной двор))) Чтобы сделать вход в комнату нужно бетонную стенку долбить...


--------------------
Администратор имеет все возможные права, два невозможных и одно невероятное.
http://idroid-usinsk.ru/
Go to the top of the pageВставить ник в ответ
+Quote Post
Crack
сообщение 7.4.2011, 15:28
Сообщение #24

Старожил
*******
Сообщений: 1343
Группа: Пользователи
Карма: 0/0
Регистрация: 21.6.2006

Ну если буит видно, нарисовал что сносил и что несущая, что нет.

у несущей есть продолжение ввиде арки, а ненесущая заканчивается коридором.
В твоем случае (5-ти этажка), все что бетонное то несущее, картонное или гипсолитовое можно ломать.


--------------------
PokerStars: Garage174
Go to the top of the pageВставить ник в ответ
+Quote Post
Ньютоник
сообщение 7.4.2011, 16:07
Сообщение #25

Старожил
*******
Сообщений: 1667
Группа: Пользователи
Карма: 0/0
Регистрация: 30.9.2010

Цитата(Crack @ 7.4.2011, 16:28) *
Ну если буит видно, нарисовал что сносил и что несущая, что нет.

у несущей есть продолжение ввиде арки, а ненесущая заканчивается коридором.
В твоем случае (5-ти этажка), все что бетонное то несущее, картонное или гипсолитовое можно ломать.

Хотим сделать как у соседей на 3 и 4 этаже. В бетонной стене нужно дверной проход продолбить. Думаю проблем с этим не возникнет smile.gif В общем время покажет smile.gif


--------------------
Администратор имеет все возможные права, два невозможных и одно невероятное.
http://idroid-usinsk.ru/
Go to the top of the pageВставить ник в ответ
+Quote Post
Crack
сообщение 7.4.2011, 16:12
Сообщение #26

Старожил
*******
Сообщений: 1343
Группа: Пользователи
Карма: 0/0
Регистрация: 21.6.2006

Цитата(Ньютоникъ @ 7.4.2011, 17:07) *
Хотим сделать как у соседей на 3 и 4 этаже. В бетонной стене нужно дверной проход продолбить. Думаю проблем с этим не возникнет smile.gif В общем время покажет smile.gif

ну раз у соседей сделано, то наверняка с перепланировкой и с получением всех бамажек, то тогда проще, можно у них попросить скопировать планировку и с нею идти уже оформлять.


--------------------
PokerStars: Garage174
Go to the top of the pageВставить ник в ответ
+Quote Post
Ньютоник
сообщение 7.4.2011, 16:16
Сообщение #27

Старожил
*******
Сообщений: 1667
Группа: Пользователи
Карма: 0/0
Регистрация: 30.9.2010

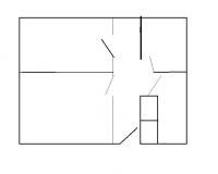
Вот так хотим сделать!
1. Сейчас.
2. У соседей.
3. Для увеличения рабочего пространства комнаты думаю лучше сделать так.

Сообщение отредактировал Ньютоникъ - 7.4.2011, 16:20
Эскизы прикрепленных изображений
Прикрепленное изображение
Прикрепленное изображение
Прикрепленное изображение
 


--------------------
Администратор имеет все возможные права, два невозможных и одно невероятное.
http://idroid-usinsk.ru/
Go to the top of the pageВставить ник в ответ
+Quote Post
Crack
сообщение 7.4.2011, 16:29
Сообщение #28

Старожил
*******
Сообщений: 1343
Группа: Пользователи
Карма: 0/0
Регистрация: 21.6.2006

во 2-м и 3-м вариантах, по моему лучше сделать двери так
Эскизы прикрепленных изображений
Прикрепленное изображение
Прикрепленное изображение
 


--------------------
PokerStars: Garage174
Go to the top of the pageВставить ник в ответ
+Quote Post
Ньютоник
сообщение 7.4.2011, 16:56
Сообщение #29

Старожил
*******
Сообщений: 1667
Группа: Пользователи
Карма: 0/0
Регистрация: 30.9.2010

Цитата(Crack @ 7.4.2011, 17:29) *
во 2-м и 3-м вариантах, по моему лучше сделать двери так

Так не получится, зелёные стены паралельны. Красным бетонные стены, синим деревянная перегородка. Хотя если полностью убрать стенку и перенести её на 1 - 1. 5 м вправо, то Ваш вариант не плохо смотрится smile.gif

Сообщение отредактировал Ньютоникъ - 7.4.2011, 18:02
Эскизы прикрепленных изображений
Прикрепленное изображение
 


--------------------
Администратор имеет все возможные права, два невозможных и одно невероятное.
http://idroid-usinsk.ru/
Go to the top of the pageВставить ник в ответ
+Quote Post
Lex_work
сообщение 7.4.2011, 19:39
Сообщение #30

Старожил
*******
Сообщений: 1017
Группа: Пользователи
Карма: 0/0
Регистрация: 21.10.2005

Кагбэ...
Прикрепленное изображение


--------------------
Цитата(father @ 25.12.2012, 0:04)
замечание написал выше. на остальное пох. не читал. много букв.
Go to the top of the pageВставить ник в ответ
+Quote Post
Ньютоник
сообщение 7.4.2011, 20:09
Сообщение #31

Старожил
*******
Сообщений: 1667
Группа: Пользователи
Карма: 0/0
Регистрация: 30.9.2010

Цитата(Lex_work @ 7.4.2011, 20:39) *
Кагбэ...
Прикрепленное изображение

Интересный вариант, но уменьшать зал в наши планы не входит! Поставил на обсуждение вариант Crackа с перемещением стенки вправо. В нём площадь жилая не сильно страдает и нравиться мне очень smile.gif


--------------------
Администратор имеет все возможные права, два невозможных и одно невероятное.
http://idroid-usinsk.ru/
Go to the top of the pageВставить ник в ответ
+Quote Post
Паша
сообщение 7.4.2011, 20:37
Сообщение #32

Участник
****
Сообщений: 233
Группа: Пользователи
Карма: 0/0
Регистрация: 19.3.2008

я заморачивался сам, сначала сделали мне проэкт архитектурно-строительный-3тр, потом согласовал электрику( в перегородках которые убирал были розетки и выключатели) - бесплатно, т.к. незначительные измения, затем сантехнику(перенос полотенцесушителя)-2тр, затем со всеми доками к архитектору в администрации-бесплатно согласование, затем затем в управляющую компанию, на парковую 7а.....Комиссия которая выдает разрешение на перепланировку заседает раз в месяц... за 8 календарный дней собрал все доки и по деньгам 5тр... ПОсле перепланировки приходят с БТИ, сверяют работы с проэктами и выдают новый паспорт..


15 т. риэлторам ни за что.. я считаю это или супер лень или немеренно денег))

Сообщение отредактировал Паша - 7.4.2011, 20:38
Go to the top of the pageВставить ник в ответ
+Quote Post
aCrack
сообщение 7.4.2011, 23:35
Сообщение #33

Завсегдатай
*****
Сообщений: 400
Группа: Пользователи
Карма: 0/0
Регистрация: 27.8.2010

Цитата(Паша @ 7.4.2011, 21:37) *
15 т. риэлторам ни за что.. я считаю это или супер лень или немеренно денег))

на 8 тыщ мне предоставили чеков и всевозможных справок, ну и 7 тыщ им за суету и хлопоты, времени реально не было.


--------------------
PokerStars: Garage174
Go to the top of the pageВставить ник в ответ
+Quote Post
Hun
сообщение 8.4.2011, 8:33
Сообщение #34

Гуру
**********
Сообщений: 12356
Группа: Пользователи
Карма: 0/0
Регистрация: 23.4.2002

Цитата(Crack @ 7.4.2011, 17:29) *
во 2-м и 3-м вариантах, по моему лучше сделать двери так


именно так и сделано у одних знакомых, расширили корридор у меньшение комнаты совсем не заметно


у других знакомых снесена стенка между кухней и правой верхней комнатой получается огромная гостнная с кухонным закуточком,
вот таким макаром
двери в ванну и туалет под углом поэтому корридор сам расширяется,
но т.к. санузлы совсем крошечные , что чуть ли не раздеватся нужно в корридоре, да и проблема с открыванием двери в ванную при открытой входной двери или когда ктото батинки завязывает, то лучше их сразу объединить
Прикрепленные изображения
Прикрепленное изображение
 


--------------------
И только за жабры подвешенный ерш
думал что ты браконьер
(с) Черный рынок
Go to the top of the pageВставить ник в ответ
+Quote Post
Ньютоник
сообщение 8.4.2011, 9:57
Сообщение #35

Старожил
*******
Сообщений: 1667
Группа: Пользователи
Карма: 0/0
Регистрация: 30.9.2010

Цитата(Hun @ 8.4.2011, 9:33) *
У других знакомых снесена стенка между кухней и правой верхней комнатой получается огромная гостнная с кухонным закуточком,
вот таким макаром
двери в ванну и туалет под углом поэтому корридор сам расширяется,
но т.к. санузлы совсем крошечные , что чуть ли не раздеватся нужно в корридоре, да и проблема с открыванием двери в ванную при открытой входной двери или когда ктото батинки завязывает, то лучше их сразу объединить

Видел такую квартиру, хорошо смотрится и места много smile.gif

Сообщение отредактировал Ньютоникъ - 8.4.2011, 9:58


--------------------
Администратор имеет все возможные права, два невозможных и одно невероятное.
http://idroid-usinsk.ru/
Go to the top of the pageВставить ник в ответ
+Quote Post
Crack
сообщение 8.4.2011, 10:09
Сообщение #36

Старожил
*******
Сообщений: 1343
Группа: Пользователи
Карма: 0/0
Регистрация: 21.6.2006

Цитата(Ньютоникъ @ 8.4.2011, 10:57) *
Видел такую квартиру, хорошо смотрится и места много smile.gif

в предложеной Hun-ом планировке, можно очень хорошо напичкать кухню, и не парится с обеденным местом. Стена там реально мешает даже 3-им разместиться


--------------------
PokerStars: Garage174
Go to the top of the pageВставить ник в ответ
+Quote Post
Ньютоник
сообщение 8.4.2011, 10:16
Сообщение #37

Старожил
*******
Сообщений: 1667
Группа: Пользователи
Карма: 0/0
Регистрация: 30.9.2010

Понимаю, но в нашей ситуации этот вариант отпадает т.к. нужны три жилые комнаты!


--------------------
Администратор имеет все возможные права, два невозможных и одно невероятное.
http://idroid-usinsk.ru/
Go to the top of the pageВставить ник в ответ
+Quote Post
Crack
сообщение 8.4.2011, 10:19
Сообщение #38

Старожил
*******
Сообщений: 1343
Группа: Пользователи
Карма: 0/0
Регистрация: 21.6.2006

Цитата(Ньютоникъ @ 8.4.2011, 11:16) *
Понимаю, но в нашей ситуации этот вариант отпадает т.к. нужны три жилые комнаты!

могу сделать ФОТО, предложеного мною варианта (вид из коридора от входной двери, если надо) тоже в 5-ке по 60 лет д.3


--------------------
PokerStars: Garage174
Go to the top of the pageВставить ник в ответ
+Quote Post
Hun
сообщение 8.4.2011, 11:08
Сообщение #39

Гуру
**********
Сообщений: 12356
Группа: Пользователи
Карма: 0/0
Регистрация: 23.4.2002

Цитата(Ньютоникъ @ 8.4.2011, 11:16) *
Понимаю, но в нашей ситуации этот вариант отпадает т.к. нужны три жилые комнаты!

Одна жилая комната будет со встроеной кухней и частыми гостями smile.gif


--------------------
И только за жабры подвешенный ерш
думал что ты браконьер
(с) Черный рынок
Go to the top of the pageВставить ник в ответ
+Quote Post
Ньютоник
сообщение 8.4.2011, 11:17
Сообщение #40

Старожил
*******
Сообщений: 1667
Группа: Пользователи
Карма: 0/0
Регистрация: 30.9.2010

Цитата(Crack @ 8.4.2011, 11:19) *
могу сделать ФОТО, предложеного мною варианта (вид из коридора от входной двери, если надо) тоже в 5-ке по 60 лет д.3

Сделай пожалуйста smile.gif


--------------------
Администратор имеет все возможные права, два невозможных и одно невероятное.
http://idroid-usinsk.ru/
Go to the top of the pageВставить ник в ответ
+Quote Post
Ньютоник
сообщение 8.4.2011, 11:18
Сообщение #41

Старожил
*******
Сообщений: 1667
Группа: Пользователи
Карма: 0/0
Регистрация: 30.9.2010

Цитата(Hun @ 8.4.2011, 12:08) *
Одна жилая комната будет со встроеной кухней и частыми гостями smile.gif

С радостью, но это бабушкина комната. Бабушке 75 лет ей хочется тишины и покоя smile.gif


--------------------
Администратор имеет все возможные права, два невозможных и одно невероятное.
http://idroid-usinsk.ru/
Go to the top of the pageВставить ник в ответ
+Quote Post
Eroha
сообщение 8.4.2011, 12:52
Сообщение #42

Мастер
***********
Сообщений: 19125
Группа: Пользователи
Карма: 0/0
Регистрация: 9.10.2009

а может просто купить квартиру и творить в ней все что хочется(в рамках дозволенного) или вон домик..


--------------------
"Помни, не страшно быть гордым
Не стыдно плакать, когда ком в горле
Не спорю - трудно жить достойно
Но это стоит того, помни"
Go to the top of the pageВставить ник в ответ
+Quote Post
steder
сообщение 8.4.2011, 13:05
Сообщение #43

All you need is love
**********
Сообщений: 10652
Группа: Пользователи
Карма: 4/0
Регистрация: 31.7.2009

Цитата(Eroha @ 8.4.2011, 13:52) *
а может просто купить квартиру и творить в ней все что хочется(в рамках дозволенного) или вон домик..

Жжошь! А говорил, что не богат! Оказывается для тебя купить квартиру или домик - просто! 5.gif


--------------------
He's a real nowhere Man, Sitting in his Nowhere Land, Making all his nowhere plans for nobody. © The Beatles

Меня ведьмы устраивают, ангелы для мудаков.
Go to the top of the pageВставить ник в ответ
+Quote Post
Eroha
сообщение 8.4.2011, 13:11
Сообщение #44

Мастер
***********
Сообщений: 19125
Группа: Пользователи
Карма: 0/0
Регистрация: 9.10.2009

а сложность то в чем...?? взял деньги в банке и купил...


--------------------
"Помни, не страшно быть гордым
Не стыдно плакать, когда ком в горле
Не спорю - трудно жить достойно
Но это стоит того, помни"
Go to the top of the pageВставить ник в ответ
+Quote Post
Hun
сообщение 8.4.2011, 13:38
Сообщение #45

Гуру
**********
Сообщений: 12356
Группа: Пользователи
Карма: 0/0
Регистрация: 23.4.2002

Цитата(Ньютоникъ @ 8.4.2011, 12:18) *
С радостью, но это бабушкина комната. Бабушке 75 лет ей хочется тишины и покоя smile.gif

хех
поменятесь с бабушкой
предложите на выбор одну из оставшихся двух


--------------------
И только за жабры подвешенный ерш
думал что ты браконьер
(с) Черный рынок
Go to the top of the pageВставить ник в ответ
+Quote Post
Crack
сообщение 8.4.2011, 14:25
Сообщение #46

Старожил
*******
Сообщений: 1343
Группа: Пользователи
Карма: 0/0
Регистрация: 21.6.2006

Цитата(Ньютоникъ @ 8.4.2011, 12:17) *
Сделай пожалуйста smile.gif

мне скинут ммс-ой я выложу, седня(вечером)-завтра. Если не горит то в понедельник-вторник можно и план квартиры разместить с квадратурой (выкопировка)


--------------------
PokerStars: Garage174
Go to the top of the pageВставить ник в ответ
+Quote Post
steder
сообщение 8.4.2011, 15:50
Сообщение #47

All you need is love
**********
Сообщений: 10652
Группа: Пользователи
Карма: 4/0
Регистрация: 31.7.2009

Цитата(Eroha @ 8.4.2011, 14:11) *
а сложность то в чем...?? взял деньги в банке и купил...

Во-первых в банке требуется вступительный (первоначальный) взнос. Его насобирать для некоторых тоже большая проблема.
Во-вторых ипотеку после покупки квартиры обычно нужно выплачивать. Каждый месяц выделять из семейного бюджета 15-30 тыр. не каждый может.

Достаточно сложностей? Или ты уже забыл, что такое мало получать?


--------------------
He's a real nowhere Man, Sitting in his Nowhere Land, Making all his nowhere plans for nobody. © The Beatles

Меня ведьмы устраивают, ангелы для мудаков.
Go to the top of the pageВставить ник в ответ
+Quote Post
Ньютоник
сообщение 8.4.2011, 15:58
Сообщение #48

Старожил
*******
Сообщений: 1667
Группа: Пользователи
Карма: 0/0
Регистрация: 30.9.2010

Цитата(Crack @ 8.4.2011, 15:25) *
мне скинут ммс-ой я выложу, седня(вечером)-завтра. Если не горит то в понедельник-вторник можно и план квартиры разместить с квадратурой (выкопировка)

Не горит, подождём. Спасибо!


--------------------
Администратор имеет все возможные права, два невозможных и одно невероятное.
http://idroid-usinsk.ru/
Go to the top of the pageВставить ник в ответ
+Quote Post
aCrack
сообщение 8.4.2011, 21:17
Сообщение #49

Завсегдатай
*****
Сообщений: 400
Группа: Пользователи
Карма: 0/0
Регистрация: 27.8.2010


пока так smile.gif


--------------------
PokerStars: Garage174
Go to the top of the pageВставить ник в ответ
+Quote Post
Eroha
сообщение 8.4.2011, 21:23
Сообщение #50

Мастер
***********
Сообщений: 19125
Группа: Пользователи
Карма: 0/0
Регистрация: 9.10.2009

Цитата(steder @ 8.4.2011, 16:50) *
Во-первых в банке требуется вступительный (первоначальный) взнос. Его насобирать для некоторых тоже большая проблема.
Во-вторых ипотеку после покупки квартиры обычно нужно выплачивать. Каждый месяц выделять из семейного бюджета 15-30 тыр. не каждый может.

Достаточно сложностей? Или ты уже забыл, что такое мало получать?

ну насчет первоначального взноса все решаемо еще у риелтора.
Ну вот платить то надо конечно...а что делать. Колбасу по дешевле покупать. Масло меньше мазать...Но все же своя квартира ....
даже когда получал мало...всегда платил.....было бы желание. Мое мнение.


--------------------
"Помни, не страшно быть гордым
Не стыдно плакать, когда ком в горле
Не спорю - трудно жить достойно
Но это стоит того, помни"
Go to the top of the pageВставить ник в ответ
+Quote Post

3 страниц V   1 2 3 >
Reply to this topicStart new topic
1 чел. читают эту тему (гостей: 1, скрытых пользователей: 0)
Пользователей: 0

 



Яндекс.Метрика УСИНСК.ин - информационный городской сайт Сейчас: 21.1.2026, 11:26
© 2000-2025 В рамках проекта "УСИНСК.ин".